ĐỒ ÁN THIẾT KẾ NỘI THẤT | THIẾT KẾ CĂN HỘ WABI SABI HOUSE
MÔ TẢ NHIỆM VỤ THIẾT KẾ WABI SABI HOUSE
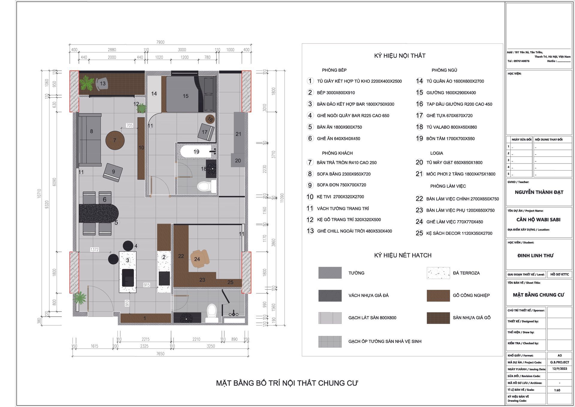
Căn hộ tọa lạc tại khu trung tâm quận Thanh Xuân, Hà Nội với tổng diện tích sàn 80m2, gia chủ sống một mình và có sở thích về game, mong muốn cải tạo không gian sống mang nét mộc mạc, tự nhiên và đầy đủ tiện nghi.
Yêu cầu thiết kế: 1 phòng khách, một phòng ngủ, 1 phòng bếp, phòng máy tính riêng để giải trí, 1 phòng làm việc, 2 phòng vệ sinh, 2 Logia
MÀU SẮC CHỦ ĐẠO
Sử dụng những gam màu tự nhiên: đen, nâu, be, xám giúp căn hộ toát lên sự mộc mạc, tĩnh lặng.
VẬT LIỆU SỬ DỤNG
Sử dụng những vật liệu thô mộc đến từ tự nhiên: gỗ, đá, vải.
Xem ngay bản thiết kế cụ thể cho dự án Wabi Sabi House của Linh Thư qua bản phối cảnh 3D và bản vẽ kỹ thuật nội thất.
SẢN PHẨM CHÍNH THỨC:
- Học viên: Đinh Linh Thư
- Lớp: TF-INT-357E018
- Giáo viên hướng dẫn: Thầy Nguyễn Thành Đạt
MỘT SỐ HÌNH ẢNH ẤN TƯỢNG:
Bạn có đam mê và muốn tự tay thiết kế không gian sống mang đậm màu sắc cá nhân như trên, hãy liên hệ ngay cho Green Academy để được hỗ trợ tư vấn và tham khảo ngay khóa học hoàn toàn miễn phí nhé !
HỌC VIỆN ĐẾN TỪ HÀN QUỐC GREEN ACADEMY
Cơ sở 1: 94C Cao Thắng, phường 4, Quận 3, Tp.HCM
Cơ sở 2: 31/2 Nguyễn Bỉnh Khiêm, Phường ĐaKao, Quận 1, Tp.HCM
Cơ sở 3: 148 Nguyễn Trãi, Phường Thượng Đình, Quận Thanh Xuân, Tp.Hà Nội
Hotline: 093 8386 086 (TP.Hồ Chí Minh) - 024 7302 8988 (Hà Nội)
Website: www.greenacademy.edu.vn
New Paragraph























